Skip to content
  • About
  • Services
    • Commercial Agency
    • Commercial Valuation
    • Lease Renewal and Rent Review
    • Property Management
    • Residential Valuation
    • Commercial Property Consultancy
  • Property Search
  • News
  • Success Stories
  • Contact

View Shortlist Continue Browsing

View Shortlist Continue Browsing
Main image
Thumbnail Thumbnail Thumbnail Thumbnail Thumbnail Thumbnail Thumbnail Thumbnail Thumbnail Thumbnail Thumbnail Thumbnail Thumbnail Thumbnail Thumbnail Thumbnail Thumbnail Thumbnail Thumbnail Thumbnail Thumbnail

To Let

Queensway Industrial Estate, Longbridge Hayes Road, Stoke-on-Trent, ST6 4DS

ROA

1,706 - 35,000 sq ft (158 - 3,252 sq m)

Request a viewing Call Agent on 01782 202294 Download Brochure
Gallery Virtual tour Map

Description

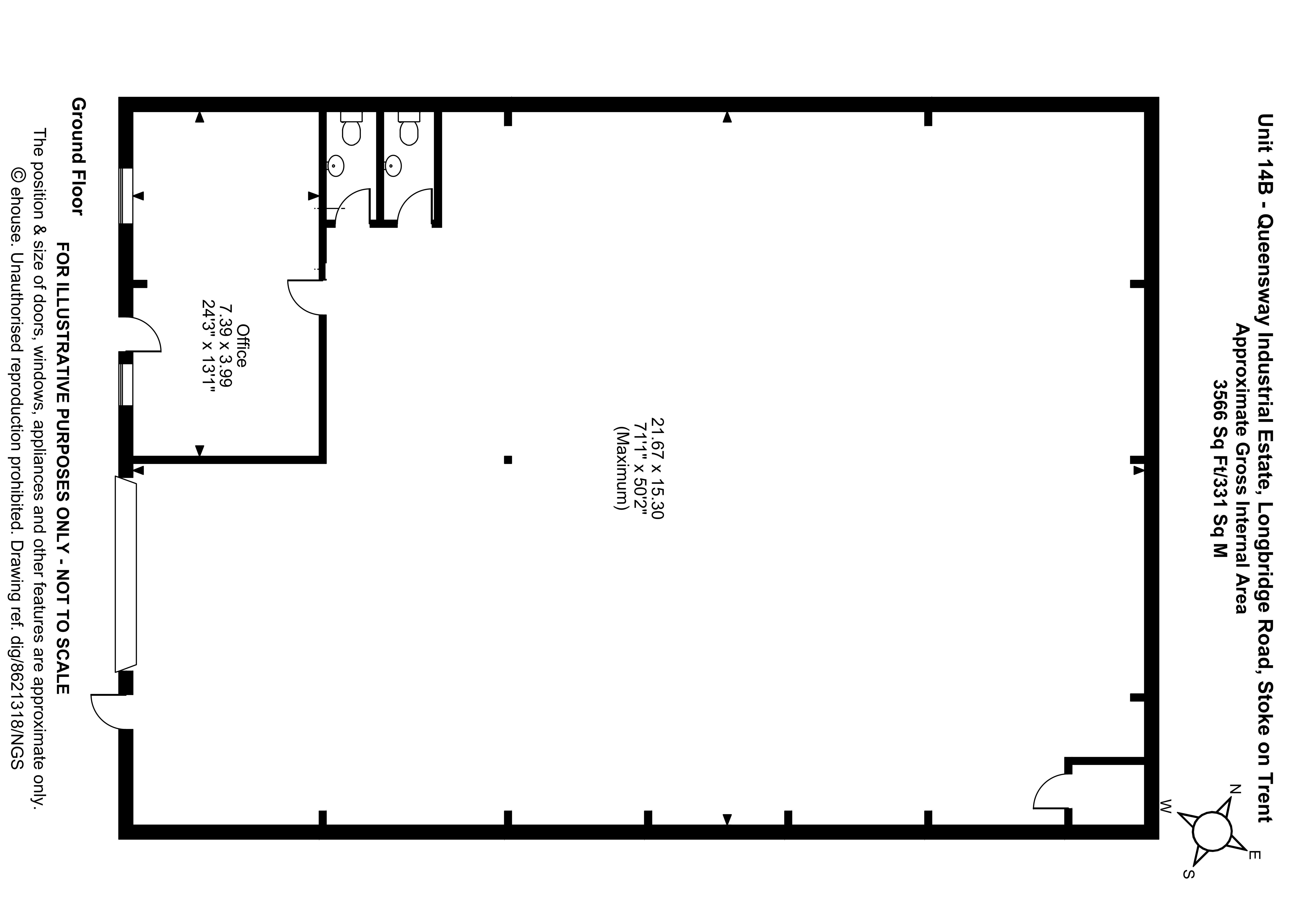
Unit 14a – LET Unit 14b – 3,547 sq.ft. – £27,600+VAT per annum
Unit 14c – 3,552 sq.ft. – £27,600+VAT per annum Unit 14d – 3,570 sq.ft. – £27,700+VAT per annum
Unit 14e – 2,288 sq.ft. – £20,800+VAT per annum Unit 14f – LET
Unit 18 – 1,706 sq.ft. – £16,900+VAT per annum

Unit 6 – 6,831 sq.ft. – £46,000+VAT per annum Unit 7 – 3,793 sq.ft. – £29,400+VAT per annum Unit 8 – 3,849 sq.ft. – £30,000+VAT per annum

The premises comprise of a variety of accommodation available on the estate which has recently undergone extensive refurbishment including new roof.

Units 14A – F and 6-8 offer;
• Industrial/ warehouse space
• WCs
• Eaves Height 5.1m to 6.5m
• Electric Roller Shutter Doors
• LED Lighting
• Onsite parking

Unit 14G-K offers;
• Industrial / warehouse space
• 5.1m eaves height
• WCs and Kitchen facilities
• Ground floor storage (3,750 sq.ft.)
• First Floor office accommodation (3,750 sq.ft.)
• LED Lighting
• Air Conditioning
• Onsite Parking

There is a variety of loading/yard areas and car parking onsite with private configurations available.

Key Points

  • Minimum 5.1m eaves height raising to 6.5m
  • Up to 37m unit depth available
  • Units can be taken individually or combined
  • A variety of loading areas and car parking onsite with private configurations available
  • Direct access to A500 dual carriageway

Location

Queensway Industrial Estate is located in Longport and accessed from Longbridge Hayes Road and sits alongside the A500 dual carriageway.

Queensway Industrial Estate has direct access onto the main A500 dual carriageway (D Road) which provides links to the remaining towns of Stoke on Trent and Newcastle under Lyme. The A500 also provides connections to the A50 to the East and M6 Motorway Junctions 15 to the South (approx. 8 miles) and 16 to the North (approx. 8 miles).

Virtual Tour

Map

Mounsey Chartered Surveyors

Address

Mounsey Chartered Surveyors, Festival Way,
Festival Park,
Stoke-on-Trent, ST1 5PU
01782 202294

Services

  • Commercial Agency in Stoke-on-Trent
  • Commercial Valuation in Stoke-on-Trent
  • Lease Renewal and Rent Review in Stoke-on-Trent
  • Commercial Property Management in Stoke-on-Trent
  • Residential Valuation in Stoke-on-Trent
  • Commercial Property Consultancy in Stoke-on-Trent
info@mounseysurveyors.co.uk

Links

Careers
Blog
  • Company Reg: 07381949
  • Regulated by the Royal Institution of Chartered Surveyors
  • © 2025 Mounsey Chartered Surveyors
  •  
  • Site map
  • Privacy Policy
  • Terms & conditions
  • Website by Starbots Creative